Tinyhouse Ranch

Did you say, "Tiny house for 8?"

Pages

  • Home
  • Videos
  • About Us
Find us on Facebook!

Monday, February 18, 2013

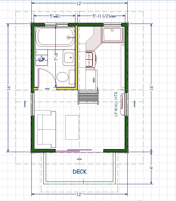
Mom's Cabin






This is my Mom's tinyhouse that I designed and framed last summer.
at 11:47 AM
Email ThisBlogThis!Share to XShare to FacebookShare to Pinterest

No comments:

Post a Comment

Newer Post Older Post Home
Subscribe to: Post Comments (Atom)

Tiny House Magazine

Tiny House Magazine Now Available in PDF Format!

Blog Archive

  • ►  2014 (1)
    • ►  March (1)
  • ▼  2013 (45)
    • ►  December (1)
    • ►  October (2)
    • ►  September (2)
    • ►  July (3)
    • ►  May (5)
    • ►  April (7)
    • ►  March (9)
    • ▼  February (16)
      • Tinyhouse on wheels
      • Solar Design
      • Just some other cabins I've drawn
      • Why a Tinyhouse?
      • Humanure
      • Mom's Cabin
      • Is your tiny house healthy?
      • Excitement
      • Tiny House Porn
      • How Much Does a House Cost?
      • STUFF
      • Waiting....
      • Hobbit Stove
      • Craptastic Day
      • The Site Plan
      • The Plan... in a nutshell

Subscribe To

Posts
Atom
Posts
Comments
Atom
Comments
Shop Amazon's New Kindle Fire
Watermark theme. Powered by Blogger.